{# ========================= DETAIL HERO: IDX hero image injected into swiper (slide #1) - Uses spec.sc_data.idx_hero_image (MediaCollection) -> active_media.0 - Keeps your existing location / default behavior ========================= #}

501 Raes Ct. #204
Charleston, SC 29414
Return to Middleborough Condos at Shadowmoss

3 Bedrooms Beds
3.0 Bathrooms Baths
1785 Square Feet sq ft

$499,900

About This Home

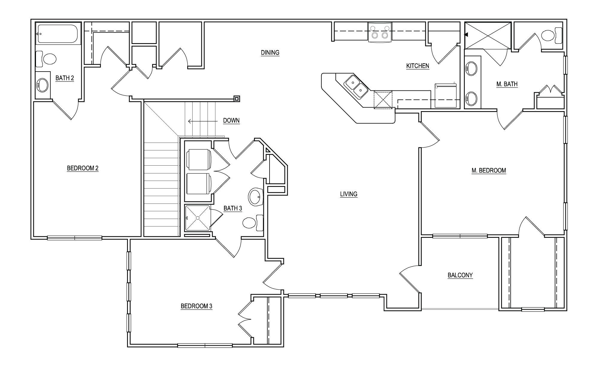
The Tradd floor plan features a split floor plan with 3 bedrooms, 3 full bathrooms, an open-concept living area flooded with natural light, a private porch, and an elevator shaft already prepped and in place. Our interior designers have truly outdone themselves — laminate floors flow throughout, brushed nickel hardware adds a polished touch, and the chef's kitchen showcases Cosmos Pebble Beach quartz counters, a subway tile backsplash, Colada painted soft-close cabinets, a Frigidaire slide-in gas range, stainless steel hood, built-in microwave, dishwasher, and a Trinsic stainless steel faucet with undermount sink. The primary suite offers a serene retreat with laminate floors, 12x24 tile in the spa-like bathroom, a walk-in tile shower with frameless glass door, Niagara quartz counters, and chrome faucets, while guest bathrooms feature equally beautiful quartz finishes throughout. Energy efficiency is built in from the ground up with a tankless water heater, programmable thermostats, single-hung low-E windows, and a 16 SEER Lennox HVAC system with variable speed. * Photos in the gallery are representations of these interiors.  

Floor Plans

Ground Level

Upper Level

Elevations

501 Raes Ct. #204 - featured elevation in Charleston South Carolina
Professional headshot of woman in green floral blouse with plants in background

Schedule a Visit

Contact Julia at (843) 738-1334 to schedule an appointment or send a message below.

Model Home Hours

By Appointment Only

Model Home Address

301 Flowering Peach Court
Charleston, SC
Get Directions
  • Bank
  • Post
  • Food
  • Medical
  • Schools
  • Parks
  • Shop
  • Transit
  • Airport
  • Gas
  • Stadiums
  • Movies

Estimate your monthly payment

Price Your Home.

$
$
%
Yrs.
$
$
%